 
        
                                            ANP IMMOBILIER
                        Agence
                                                        
            
                Contacter l'agence
    
             
                
                
            Vendu
                    
    
            
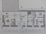
            Maison 5 pièce(s) 3 chambre(s) 129.82 m²
Les Sorinières (44840)
            
                    
            
    
    
            
            
            Référence 1386
        
    A propos de ce bien
Dans un environnement calme et champêtre à 4.5 kms des Sorinières et à 8 kms de Vertou sur la commune du Bignon, bâtiment en pierre entièrement à rénover proposant un projet de 130 m² habitable sur un terrain de 502 m² - Permis de construire accepté - DPE non requis - Réf.NP1386 / ANP IMMOBILIER GENESTON / 02 40 659 503 / prix FAI / Plus de photos et de biens sur www.anp-immobilier.com
                        Caractéristiques de ce bien
- Surface 129,82 m²
- terrain 502 m²
- 3 chambre(s)
- construit en 1930
- exposition Nord-Est
- 1 côté(s) mitoyen(s)
- 1 étage(s)
- Pas de balcon terrasse
- quartier village
Diagnostics énergétiques
                        Consommation énergétique
                        
                    
                            A
                            B
                            C
                            D
                            E
                            F
                            G
                        
                    
                        Emission de gaz à effet de serre
                        
                
                            A
                            B
                            C
                            D
                            E
                            F
                            G
                        
                    DPE ANCIENNE VERSION
                
                    Diagnostics énergétiques
DPE ANCIENNE VERSION
             
                     
                                 
                                 
                                 
                                 
                                